产品分类

全国服务热线:

15105105688

烘干机系列

网站当前位置:网站首页 > 产品展示  
  • 河沙烘干机
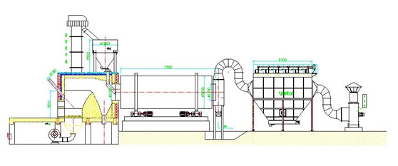
  • 三筒烘干机主要用于烘干一定湿度和粒度范围内颗粒物料,如干粉砂浆行业所用的黄砂,铸造行业用的各种规格型砂,建材水泥行业用的高炉矿渣,小粒度粘土,化工行业用于不起化学变化、不怕高温及烟尘弄脏的小颗粒物料。根据不同行业对烘干后物料终水分要求,烘干后的物料含水量可以达到1-0.5%以下。

    进入烘干机内的物料以不粘筒壁及扬料板为宜。进入烘干机内热交换的气体温度不宜高于750℃如有特殊要求高温烘干,烘干机的入口处内筒及扬料板可用耐热钢板制造。

江苏海鑫环境工程有限公司 版权所有 备案号:苏ICP备09036380号 技术支持:思科网络
服务热线:15105105688(胡先生) 18705100599(徐先生) 电话:0515-83083666 传真:0515-88408300 邮箱:jshxhj@126.com
地址:盐城市高新技术产业区纬八路1号 邮编:224400

客户至上 服务保障 科技创新 追求卓越